网站首页
走进中矿
中矿团队
加工能力
产品展示
原料场与港口装卸
电站辅机
建材设备
矿山机械
环保设备
工程总包
输送机械
新闻资讯
公司新闻
行业新闻
资质专利
资质许可
认证检测报告
专利证书
成功业绩
联系我们
当前位置:
江苏中矿
>>
产品中心
>>
建材设备
>>
散装装车设备
>> CSZ300长江边散装船系统
散装装车设备
ZYL中央链斗式提升机
SZ两库连体散装机
CSZ-300散装船系统
SZT300熟料散装机
SZT300-Ⅰ/1熟料散装机
SZT300-Ⅰ/2熟料散装机
SZT300-Ⅱ熟料散装机
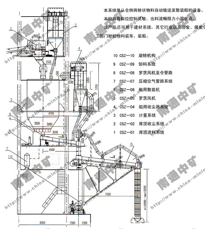
CSZ300长江边散装船系统
移动熟料火车装车机
ZSQ300/600散装机
DZQ100装车机
B650行走式装车机
建材设备
卸料装置
散装机
锁风卸料阀
其他阀门及喂料设备
高温管道阀门
粉体阀门
袋装装车设备
散装装车设备
均化设备
产品导航
原料场与港口装卸
电站辅机
建材设备
矿山机械
环保设备
工程总包
输送机械
推荐产品
烟气脱硫风门(脱硫烟气挡板门)
烟气脱硫风门(脱硫烟气挡板门)
关闭挡板风门系列
关闭挡板风门系列
调节挡板风门系列
调节挡板风门系列
隔绝门
隔绝门
CSZ300长江边散装船系统
服务热线:13358079111(陆先生) 13506277748 (丁先生)
您可能感兴趣的
ZYL中央链斗式提升机
SZ两库连体散装机
CSZ-300散装船系统
SZT300熟料散装机
SZT300-Ⅰ/1熟料散装机
SZT300-Ⅰ/2熟料散装机
典型案例
>>更多
南通市科学技术进步奖
相关动态
友情链接
卷板机
前处理设备
淬火油
大弹簧
返回顶部
13358079111
在线咨询
微信二维码