烟气脱硫风门(脱硫烟气挡板门)
关闭挡板风门系列
调节挡板风门系列
隔绝门

一、熟料散装机概述:
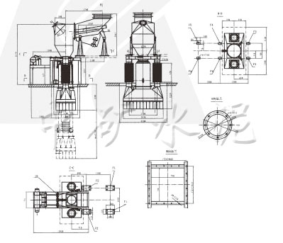
南通中矿生产的熟料散装机是从库内将熟料(≤50mm)自动输送到熟料散装车船的设备。库底水泥熟料散装设备主要由手动棒阀,电动扇形阀,卷扬装置,伸缩卸料装置、收尘软管,电容式限位开关,电控系统等部分组成。用户也可选用库侧熟料散装设备。

二、技术参数表:
| 技术性能 | 技术参数 |
| 输送物料 | 水泥熟料或类似块状物料 |
| 物料容重 | 熟料1.45t/m3 |
| 物料温度 | <=80℃ |
| 物料粒度 | <=50(mm) |
| 装车能力 | 200t/h |
| 卸料头伸缩距离 | 根据用户要求定制 |
| 手动棒阀 | 790x790mm 410x410mm |
| 电动扇形阀 | DZG1103 2x1.1KW |
| 气动棒阀 | DTY700-400/100 1.5KW(气缸:QGB125x400-MP4) |
| 卷扬机 | CD1-18D 功率:3KW 升降速度:8m/s |
| 电容式限位开关 |
FTC131探头规格:探头直径ф25x400 工作压力10bar 工作温度-20℃-80℃ FTM131探头规格:探头直径ф20x230 加长170mm 工作压力10bar |
| 装机功率 | ~5.2Kw ~4.5Kw(~3KW) |
| 参照图 | SZT300-Ⅰ/1、SZT300-Ⅱ/2、SSQ300-Ⅲ |
| 机型 | 库底、库底、库侧 |
工作原理:
当运输工具进入位置后,打开棒阀相应的棒条数量。按住控制柜的“下降钮”,下料头到位后会自动断开升降电机电源,按“装车钮”进入御料状态,辅助配套设备会相应开始工作,卸料产生的灰尘通过进料斗,由伸缩收尘软管进入收尘器净化,当下料头的物料装满时,下料头边上升,边报警,上升距离要在装料前设置。若上升距1米,则将时间继电器的时间调为T=1/V。在上升过程中装料始终在进行,当下料头满时,再重复上述动作,到达料满位置后,按停车钮,使电振机反制动,或关闭扇形阀下料停止工作,其它设备相应停止工作。停车后可按上升按钮让下料斗离开物料一定距离,确保运输工具的移动,再对准第二个卸料工位。直到整个料仓装满为止。
SZT300-Ⅰ/1熟料散装机技术参数及示意图


SZT300-Ⅰ/2熟料散装机示意图

SZT300-Ⅱ熟料散装机示意图
